СТРОИТЕЛЬНЫЙ КОНТРОЛЬ ИЖД

Стоимость:

до 200 м2 - 60 000₽ /месяц

1-2 выезда в неделю (4-8 выездов в месяц)

200-300 м2 - 80 000/месяц

2-3 выезда в неделю (8-12 выездов в месяц)

300-500 м2 - 100 000/месяц

2-3 выезда в неделю (8-12 выездов в месяц)

более 500 м2 - рассчитываются индивидуально

Всю работу (проверки, рекомендации, решения)
фиксируем в общей группе Telegram/WA

Отчетность по объекту:

  • График фактических выездов на объект
  • Акт выполненных работ

Для инструментального контроля качества работ имеется оборудование: тахеомерт, склерометр, плотномер, лазерный ротационный нивелир и тд), возможно привлечение аккредитованной независимой лаборатории.

                                                                                                           дополнительные условия оговариваются отдельно

Перечень объектов технического сопровождения:

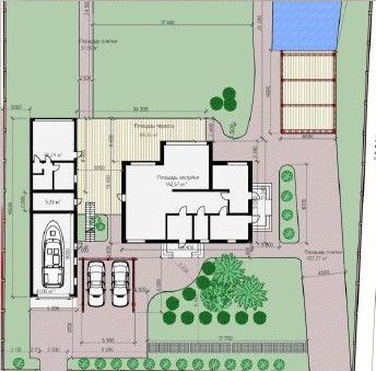
Строительство ИЖД на 1700 м2

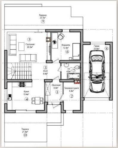
Строительство ИЖД на 256 м2

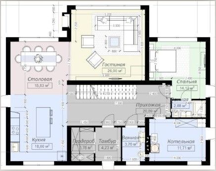
Строительство ИЖД на 145 м2

Строительство ИЖД на 153 м2

Строительство ИЖД на 205 м2

Строительство ИЖД на 255 м2

Строительство ИЖД на 822 м2